Bahamas House Project

February 2020

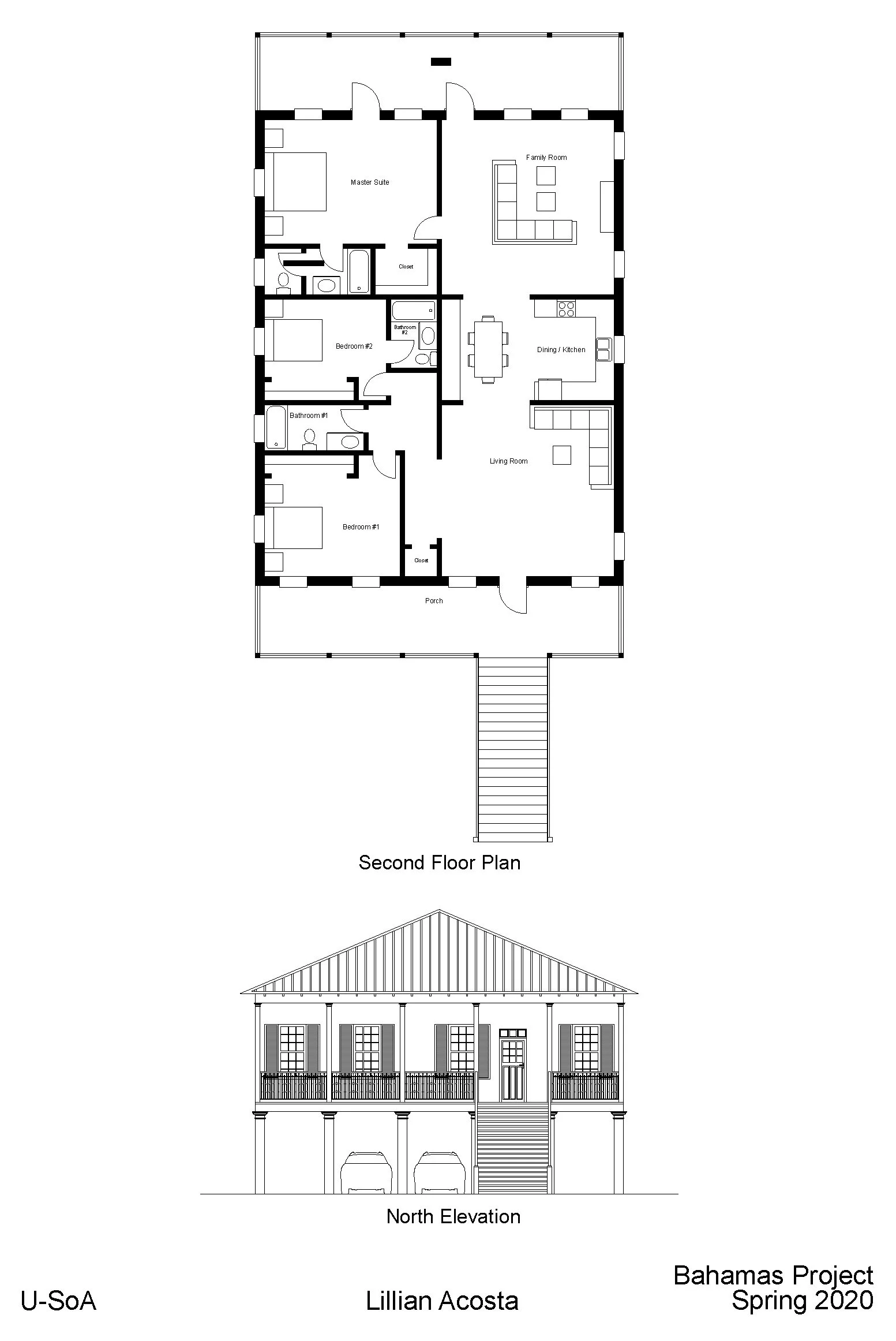
This project aimed to develop a comprehensive urban neighborhood layout across a large plot of land in the Bahamas. Utilizing all students in the grade, we developed a neighborhood scheme first and later went on to design the individual plots. Each student was allowed creative liberties with their plots, however, the main goal was to include references to and inspiration from vernacular Bahamian architecture practices.

Programs: AutoCAD, Illustrator

Previous
Previous

A Study on Piet Mondrian

Next
Next

Freshman Drawing Portfolio